Groupe scolaire Jacques Brel

2011 | Réhabilitation du groupe scolaire Jacques Brel à Courcouronnes (91)

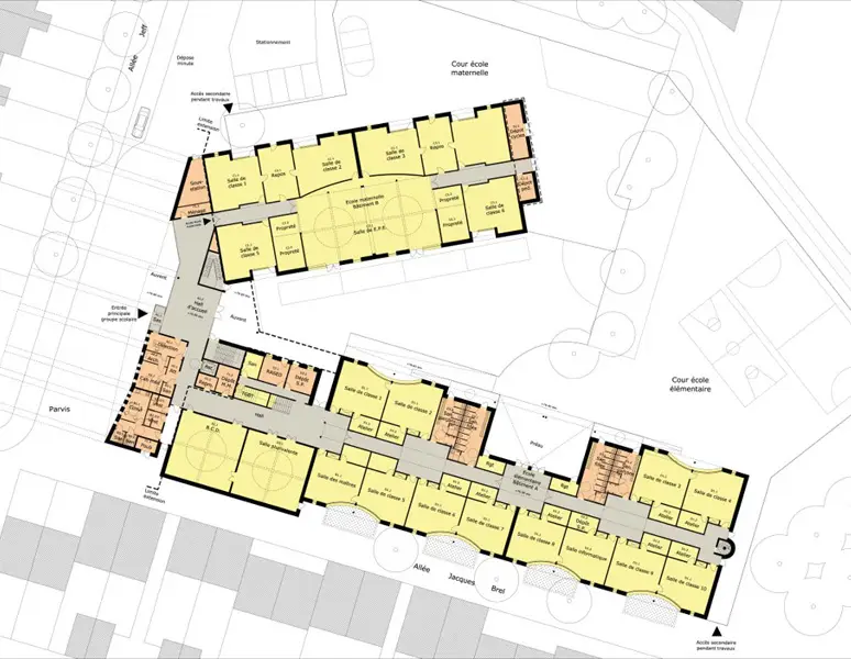
Le groupe scolaire Jacques Brel est implanté au quartier du canal à Courcouronnes dans l’Essonne. Il regroupe une école maternelle et une école élémentaire. Le bâtiment initial, construit il y a 40 ans était devenu obsolète tant du point de vue esthétique que thermique et fonctionnel.
Le projet a consisté d’une part à rétablir une liaison et une cohérence fonctionnelle entre les deux écoles par la création d’un nouveau bâtiment faisant la jonction et d’autre part à réhabiliter le bâtiment d’origine en terme d’image architecturale, d’amélioration des performances thermiques, d’amélioration fonctionnelle et d’aménagements intérieurs.

Le nouveau bâtiment contient des classes supplémentaires en étage, des bureaux pour l’administration en rez-de-chaussée, des locaux de service, des blocs sanitaires. Les façades de l’existant et de l’extension reçoivent un revêtement en briques pleines portées avec isolation extérieure. L’extension est construit en ossature béton, les salles de classes reçoivent de larges baies vitrées protégées de l’orientation ouest par des lames verticales en aluminium perforées. Les ensembles vitrées des existants sont traités par des inserts en aluminium gris.

Les abords du groupe scolaire ont été requalifiés par des revêtements de type stabilisé, de plantations, de revêtements d’aire de jeux.

Évry-Courcouronnes est une commune nouvelle française créée le 1er janvier 2019, issue de la fusion des communes d’Évry et Courcouronnes, et la préfecture du département de l’Essonne, dans la région d’Île-de-France. 

Ville d’Évry-Courcouronnes – Site officiel (evrycourcouronnes.fr)

Localisation: Courcouronnes
Programme: Réhabilitation-extension du groupe scolaire Brel
Maîtrise d’ouvrage: Ville d’Evry-Courcouronnes
Maîtrise d’oeuvre: Stéphane Barbotin-Larrieu & Paul Gresham, architectes | BETOM bureau d’études techniques | Cap terre HQE
Surface: 3100 m² dont 300m² extension (hall entrée+circulation)
Coût: 2,6 M€

Statut: livré